• 设计·施工·报价热线:

    158-5009-1878

  • 0512-65560040

中国电子竞技下载

NEWS CENTER

中国电子竞技下载

与我们一起了解更多中国电子竞技下载

中国电子竞技下载 >> 中国电子竞技下载

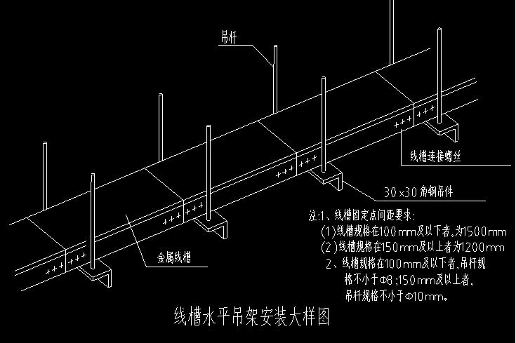
一份弱电桥架金属线槽安装大样图,CAD格式

2023/05/29 | 宝天智能 | 点击数:179

一份弱电桥架/金属线槽安装大样图,CAD格式